[Virtual Tour] Incredible Opportunity in Campbell! 3-Bed Single Family Home- $1,380,000

 

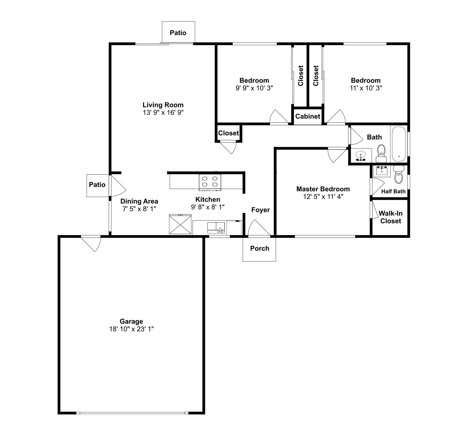
Incredible opportunity to own in Campbell! This 3 bed, 1.5 bath single family home offers a large living room that leads out to a spacious backyard. This fantastic outdoor space includes a large lawn area, storage shed, and a side yard with a concrete patio perfect for outdoor seating and dining. Kitchen features stainless-steel appliances, ample storage space, and a designated dining area. The spacious primary bedroom offers a walk-in closet along with attached half-bath. Other features include central A/C, dual pane windows, copper plumbing, a newer water heater, and a 2-car garage. Enjoy access to highly rated Westmont High School. You will love this central location close to shopping, restaurants, and all the attractions that Downtown Campbell has to offer. 

Explore now using our 3D Virtual Tour, click here!

For more photos and information, click here!

Offered at $1,380,000. Contact Eric Woodward at (408) 623-7204 or [email protected].

 

Connect With Us

We’ve designed our all-inclusive service to ensure every aspect of your transaction is thoroughly managed and expertly directed. If you’ve got questions, don't hesitate to contact us.

Contact Us

Follow Us on Instagram